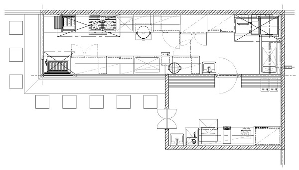
厨房設備施工例


和食店: 席数 50席