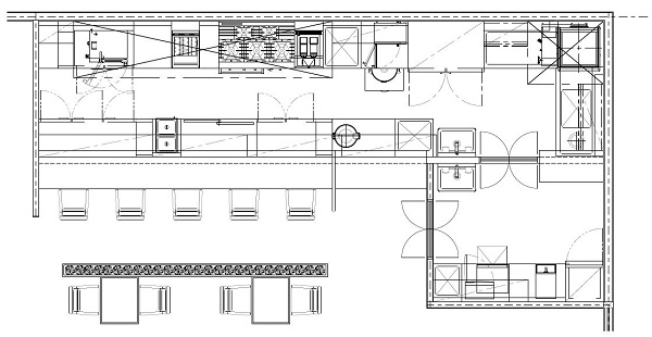
厨房設備施工例


洋食: 席数 40席